1 / 3
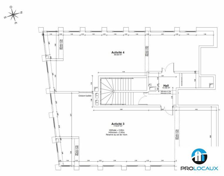
Vente Bureaux 119 m²38800 Le Pont De Claix
161 959 €
Pourcentage d'honoraires acquéreur : 8 % du prix de vente (honoraires HT)
LOCAL D'ACTIVITE A VENDRE
Disponibilité : immédiate
Référence : 38_000310
Les informations sur les risques auxquels ce bien est exposé sont disponibles sur le site Géorisques.
Caractéristiques
Immeuble
- Accès mobilité réduite
- État du bien : Programme neuf
Emplacement
Le Pont De Claix 38800
À proximité (moins de 300 m)
Sport
2 Salles de sport / Fitness
Alimentation
1 Restaurant
Santé
1 Pharmacie / Parapharmacie
Enseignement
2 Écoles
Énergie
Diagnostic de performance énergétique (DPE)
A
B
C
D
E
F
G
Consommation (énergie primaire) : Non communiqué
Indice d'émission de gaz à effet de serre (GES)
A
B
C
D
E
F
G
Émissions : Non communiqué
